
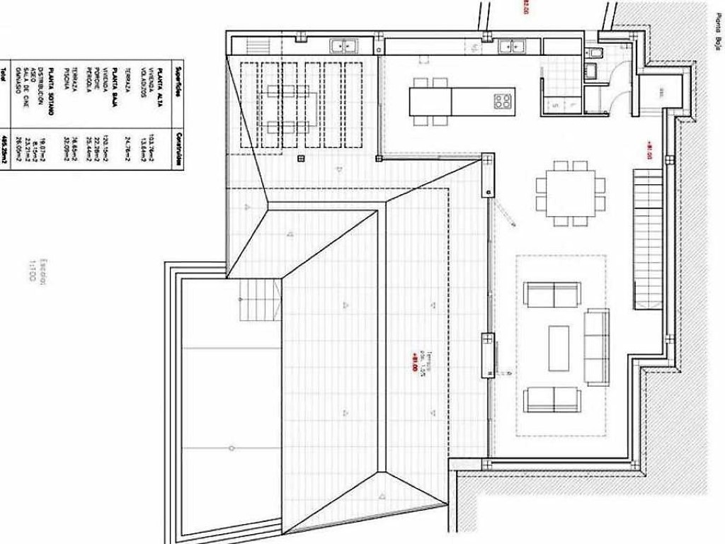
This beautiful modern villa with sea view is being built in Paichi near the center of Moraira. The villa is spread over 2 floors. On the ground floor there is a lounge with dining area, a fully equipped modern open kitchen, a laundry room and a guest toilet. On the top floor there are 2 double bedrooms each with their own bathroom en suite and the master bedroom with bathroom en suite. In addition to the partly covered terrace with swimming pool, there is a maintenance-friendly garden.
Property ID :
Property Type :
Price :
Property Status :
BG2-16167
Detached Villa
€850,000
For Sale
Bedrooms :
Bathrooms :
Property Size :
Plot Size :
3
3
285m²
757